byt 1

2+kk

50,79 m2

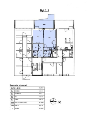
Byt č. 1 o velikosti 2+kk a výměře 37,27 m2 s terasou 13,52 m2 ve formě předzahrádky bude v přízemí bytového domu. Hlavní obytnou část s prosklenou stěnou a terasou bude mít orientovanou na slunnou jihozápadní stranu – do klidové zóny zahrad okolních rodinných domů.

Prodejní cena bytu na klíč:

4 362 600 Kč


k dispozici

pdf

Byt č. 1 o velikosti 2+kk a výměře 37,27 m2 s terasou 13,52 m2 ve formě předzahrádky bude v přízemí bytového domu. Hlavní obytnou část s prosklenou stěnou a terasou bude mít orientovanou na slunnou jihozápadní stranu – do klidové zóny zahrad okolních rodinných domů.

 Vytápění bude elektrické podlahové s vlastním termostatem pro každou místnost kombinované s tepelným čerpadlem vzduch – vzduch s klimatizací.

 Rekuperace bude formou lokálních rekuperačních jednotek.

 Příslušenstvím bytu bude sklepní kóje o velikosti 2 - 3 m2 a parkovací stání v dvorním traktu.

 

lokalita

ul. Havlíčkova, Břeclav

okolí

škola

650 m
5 min chůze

zastávka

650 m
5 min chůze

supermarket

650 m
5 min chůze

nemocnice

650 m
5 min chůze

Napište nám

Domluvte si schůzku s makléřem.

Stanislav Görner

jednatel

Telefon:
+420 724 174 124

E-mail:
stanislav.gorner@seznam.cz

Odesláním formuláře souhlasíte se zpracováním osobních dat.
Více informací zde.
loading

Než budete pokračovat

Snažíme se náš web neustále vylepšovat. A k tomu potřebujeme data. Sbíráme je pomocí cookies, které nám pomáhají analyzovat návštěvnost a následně přizpůsobit obsah a reklamu. Pokud se sběrem cookies nesouhlasíte, klikněte zde.

Cookies - nastavení

zavřít

Snažíme se náš web neustále vylepšovat. A k tomu potřebujeme data. Sbíráme je pomocí cookies, které nám pomáhají analyzovat návštěvnost a následně přizpůsobit obsah a reklamu. Pokud se sběrem cookies nesouhlasíte, klikněte zde.

Správa předvoleb souhlasu

Nezbytné cookies

Bez nich se web neobejde. Zajišťují, aby vše fungovalo, jak má.

vždy povoleno

Marketingové cookies

Shromažďují informace, které pomáhají k lepšímu přizpůsobení reklam vašim zájmům.

Personalizační cookies

Se zapnutým personalizovaným cílením budeme zpracovávat informace o vašem chování na webu. Díky tomu jsme vám schopni nabídnout to, co vás zajímá.

Analytické cookies

Pomáhají nám zjistit, kdo navštěvuje náš web a jak ho lidé používají. Díky těmto datům můžeme efektivně pracovat na vylepšování obsahu i funkčnosti.